Блок-контейнер (БК-04) в его комплектациях разработан специально для ведения бизнеса в любых условиях или комфортного проживания (семьи, строителей).
Очень удобен для проживания в нём рабочих, сотрудников или всех членов вашей семьи, а также ведения бизнеса и бизнес-процессов.
Покупайте этот блок сейчас для того, чтобы ваша семья или ваш бизнес были процветающими!
Вы можете изучить более подробное описание, обратите внимание на комплектацию и заказывайте этот универсальный во всех отношениях блок!
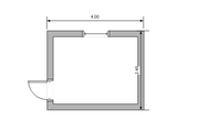
БК-04 - это очень удобный блок-контейнер для проживания и ведения бизнеса, универсальный по своему назначению. Особенная планировка с разделением на три секции, 2-мя дверями внутри, позволяет разделить и изолировать помещение для различных потребностей (семьи или офисных сотрудников, строителей, рабочих и т.д.). Хорошо подходит для создания офиса и проживания с удобствами.
Дополнительным плюсом выступают габариты помещения - 5,85x2,45x 2,45 , которые позволяют разместиться с большим комфортом и удобствами внутри блока.
Также одним из преимуществ данной модели выступает: большое количество окон (может быть максимально 4 окна), что способствует большей освещенности, созданию позитивного настроения и хорошей рабочей атмосферы.
В стандартную конструкцию БК-04 входит:
- швеллер 120 мм и уголок 90 мм, делают конструкцию более устойчивой и надежной;
- специальное утепление KNAUF (50 мм.), держит тепло даже при -25 градусов ;
- двойное остекление всех окон, эта система надежно позволяет сохранять тепло и экономить энергию, затраченную на обогрев;
- электропроводка в кабель-канале, это безопасность для Вас и ваших сотрудников, а также создание готовых оптимальных условий для работы;
- пол из шпунтованной доски, идеален для удобства и надежен;
- внутренняя отделка из ДВП, легко и просто, экономично.
Товар имеет все необходимые сертификаты.
Все условия доставки и заказа Вы можете уточнить прямо у наших менеджеров.
Позвоните прямо сейчас! Не ждите и закажите по телефону это отличное предложение для бизнеса и проживания - прямо сейчас!
У вас намечается стройка? тогда вам необходимо позаботиться о размещении рабочих, хранении материалов и инструментов и туалете (без него никуда как мы знаем). Краус рада порекомендовать приобрести все сразу. Бытовка Б-01 (4М) ДВП-для проживания и размещения рабочих, Бытовка-хозблок 3х2,3м-для того чтобы свободно разместить все инструменты и материалы, не оставляя их под открытым воздухом. И Модульный деревянный туалет для соблюдения чистоты на вашем участке.



Блок контейнеры
Модульные здания
Сэндвич панели
Посты охраны
Хозблоки
Сборно-разборные
Морские






















































ЭВРИСТИКА