Модульная гостиница – комфортные аппартаменты для руководства предприятия!
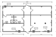
Нужны комфортабельные апартаменты для руководства компании? Модульная гостиница – это экономное и рациональное решение. Эта модель имеет огромную площадь (14,15х7,35 м), колоссальное количество перегородок, санузел и систему климат контроль.
Обратите внимание на то, что в модульном сооружении все предусмотрено до мельчайших мелочей. Качественная и надежная ЕВРО электрическая проводка с системой защиты от повреждений (УЗО на 2,5 А), восемь тепловых конвертера, четыре кондиционера сделают пребывание в гостинице максимально уютным.
В ваших новых апартаментах используется только экологически чистые материалы. Стены утеплены (минеральная вата KNAUF, толщиной 100мм) и отделаны МДФ-панелями, на пол положена прочная шпунтованная доска, поверх которой размещен линолеум.
В здание есть все необходимые условия для комфортабельной жизни, а именно: душевая комната, туалет, мощный электрической водонагреватель на 100 литров для бесперебойной подачи горячей воды и многое другое.
При необходимости конфигурация галереи может быть изменена.
Можно с уверенностью сказать, что это лучшее модульное решение на рынке для комфортабельного проживания руководствующего звена предприятия. Детали покупки уточняйте у наших менеджеров.



Блок контейнеры
Модульные здания
Сэндвич панели
Посты охраны
Хозблоки
Сборно-разборные
Морские



























































ЭВРИСТИКА