
Модульные здания – это универсальные многофункциональные и быстровозводимые здания, обычно они возводятся в короткие сроки с максимальной экономией средств.
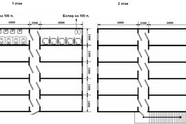
Классический вариант модульных зданий в виде чертежа - это одноэтажное здание-комплекс, которое включает в себя несколько блок модулей в виде отдельных комнат или единого пространства.
Могут быть в виде:
общежития, модульные дома, автомобильные мойки, гаражи, прачечные, бани, кафе, столовые, магазины, торговые павильоны, промышленные здания, склады, ангары, терминалы, спортивные комплексы, здания для фермы или ведения сельского хозяйства, административные здания и мн. др.
Модульные здания чертежи в этом случае зависят от того в какой сфере будет использоваться будущее строение: для проживания, для торговли, в целях обслуживания, для производства и т.д.
Для того, чтобы здание функционировало достаточно внести небольшие коррективы в схему, добавив необходимые коммуникации и вы можете легко и спокойно заселять сотрудников, вести деятельность, начинать производственную деятельность или заниматься бизнесом.
Производство чертежа зависит еще от будущей планировки здания, т.е. каким способом будут размещаться ваши работники, а также какое количество этажей будет необходимо.
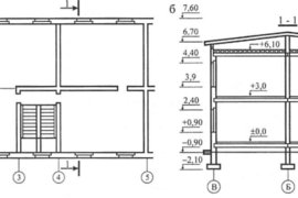
Модульные здания бывают максимум 2-3 этажа, а сами этажи формируются за счет - вертикального соединения блок модулей между собой.
При этом модульные здания чертеж может включать в себя и схему будущего фундамента, что производится из шлакоблоков, в большинстве случаев не требуется его установка в связи с тем, что здания делаются из легких материалов.
От будущего проекта чертежа напрямую зависят сроки и стоимость возведения модульного строения.
Узнать стоимость, сроки возведения модульного здания по чертежу или обсудить будущий чертеж можно у нас на сайте связавшись с менеджером по телефону или написав в чат на сайте.
Наша компания является профессионалом в производстве модульных зданий, качество и надежность, простота и безопасность в эксплуатации объясняются проверенными технологиями и работой команды профессионалов. Все наши модульные здания проходят необходимый строительный контроль в соответствии со всеми необходимыми сертификатами.
Быстро, дешево, безопасно и надежно! Реализуйте все свои бизнес-планы вместе с нами! Звоните и заказывайте модульные здания по своему чертежу!



Блок контейнеры
Модульные здания
Сэндвич панели
Посты охраны
Хозблоки
Сборно-разборные
Морские
































ЭВРИСТИКА