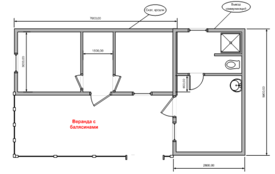
Проект представлял собой возведение на участке двух модульных зданий для летнего лагеря, а также хозблока. Предлагалось собрать туалет и бытовки прямо на участке заказчика, под заранее указанные размеры 9,60 х 5,80 х 2,80 м, а также размещенную яму под туалет. Для реализации и укрепления конструкций мы использовали следующие решения и их сочетания:
- Каркас – брус 100х40;
- Кровля – односкатная, оцинкованный профлист неокрашенный;
- Внешняя отделка – вагонка ШТИЛЬ, с обработкой Акватекс;
- Внутренняя отделка – евровагонка класса В и панели ПВХ;
- Утеплитель ППС– URSA 100 мм;
- Пол – шпунтованная доска, линолеум бытовой;
- Электропроводка стандарт в кабель-канале (11 розеток/автомат 25А – 2шт/автомат 16А – 2шт/светильник 5 свет)
- Веранда с балясинами;
- Дополнительно: окна деревянные 0,78х0,93 и 0,6х0,4, двери входная и внутренние, душевой поддон со шторкой, умывальники и унитазы в хозблоке, 3 конвектора, счетчик и генератор.
Сборка осуществлялась в течение недели на участке заказчика и была завершена точно в срок.
Разработка решения специально под проект клиента. Реализация сочетания бытовок и хозблока. Сборка на участке.



Блок контейнеры
Модульные здания
Сэндвич панели
Посты охраны
Хозблоки
Сборно-разборные
Морские












































ЭВРИСТИКА